|
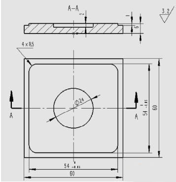
利用Solidworks软件强大的三维造型功能和Mastercam软件强大的CAM功能,以Solidworks和MastercamX5为例,提出基于Solidworks与Mastercam的CAM应用新思路。通过实例,首先利用Solidworks构建待加工零件的三维模型,再将该三维模型导入到MastercamX5软件中,并利用实体串连选择加工轮廓,生成零件数控加工路径。 1 引言 Solidworks软件是达索旗下Solidworks公司的产品,是目前使用较多的3D设计软件之一。Solidworks软件具有强大的三维造型功能,其操作界面具有简单、友好和易用的优点。 Mastercam软件是市面上主流的CAM软件之一。Mastercam软件具有强大的CAM功能,易学易用,在企业中获得了广泛的应用。 本文将Solidworks软件强大的三维造型功能和Mastercam软件杰出的CAM功能结合起来,以Solidworks和MastercamX5为例,提出基于Solidworks与Mastercam的CAM应用新思路,并通过图1所示的简单加工实例对这一CAM应用进行初步探索。假设工件材料为45钢。 ![]() 图1 被加工零件图 2 构建被加工零件的三维模型 这里首先利用Solidworks构建被加工零件的三维模型,其主要过程及操作步骤如下: (1)新建零件文件。双击桌面上Solidworks图标打开软件,单击“新建”按钮,选择“零件”并单击“确定”,新建一个.SLDPRT零件文件。 (2)创建凸台1(60×60×5)。选择“前视基准面”作为草图绘制平面,单击草图选项卡下的“草图绘制”按钮,选择“中心矩形”,绘制以原点为中心的60×60的矩形草图,单击“退出草图”以完成草图绘制;选择特征选项卡下的“拉伸凸台/基体”按钮,方向1的深度值设为5,单件“√”,完成凸台1的创建。 (3)创建凸台2(54×54×1)。选择凸台1的上表面作为草图绘制平面,采用与(2)类似的操作步骤,创建凸台2。 (4)创建圆角。选择特征选项卡下的“圆角”特征,半径值设为5,并选择凸台2四周四条竖直边线,倒4个R5的圆角。 (5)创建φ24×2的圆槽。选择凸台2的上表面为草图绘制平面,采用与(2)类似的操作步骤,绘制φ24的圆草图;选择特征选项卡下的“拉伸切除”按钮,方向1的深度值设为2,单件“√”,完成φ24×2圆槽的创建。 利用Solidworks创建的被加工零件的三维模型如图2所示。 ![]() 图2 被加工零件的三维模型 3 生成被加工零件的加工路径 这里将利用MastercamX5生成被加工零件的加工路径。 3.1 零件加工工艺分析 假设毛坯尺寸为65×65×8,该零件主要加工工艺过程如下: (1)铣平面; (2)铣60×60外轮廓; (3)粗铣54×54外轮廓; (4)铣φ24圆形槽; (5)精铣54×54外轮廓; (6)翻面铣平面,保证厚度尺寸。 工序(1)、工序(6)可手动操作机床完成,工序(5)加工路径的生成与工序(3)类似,故本文仅以工序(2)、工序(3)及工序(4)为例介绍被加工零件加工路径的创建。 3.2 零件加工路径的创建 生成工序(2)、工序(3)、工序(4)加工路径的主要操作步骤如下: (1)在MastercamX5中直接打开Solidworks创建的零件文件。双击桌面上MastercamX5图标打开软件,单击“打开文件”按钮,在“打开”对话框中,待打开的文件类型选定为“Solidworks文件”,找到对应于被加工零件的.SLDPRT文件,单击“打开”。 |






